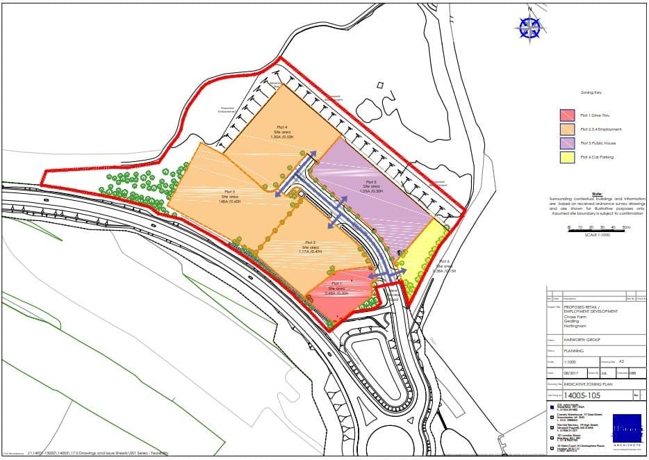
Plans for a new pub and restaurant, a drive-through restaurant and several industrial units on a new estate in Gedling have been revealed.
The plans were unveiled for the Chase Farm estate today, which is being built alongside the £40 million Gedling Access Road.
Planning restrictions mean 315 homes can currently be built at Chase Farm, but once the new road is built this will rise to 1,050.
It is hoped that between 133 and 203 jobs could be created as a direct result of the development.
Nottinghamshire County Council has asked the developers behind the application to make a contribution of £126,000 towards improving public transport in the area, which it says will be needed as a result of the new jobs.
A community infrastructure levy, would also have to be paid by the developers, but this will be calculated at a later date, if the scheme is approved.
There is also expected to be significant car parking built to cater for the new development.
The application has been made for ‘outline’ planning permission – essentially an agreement of the concept in principle.

If approved, developers would then have to submit detailed plans of exactly what the buildings will look like. They would have five years to confirm these, otherwise the permission would lapse.
Planning officers at Gedling Borough Council, have recommended that the proposal be approved.
However they have added a restriction to say that the businesses cannot open until the Gedling Access Road is opened – currently expected to be winter 2020.
A number of other restrictions have also been recommended, including that the developers submit a detailed travel plan before construction can begin, that they produce a surface water drainage scheme and various tree protection schemes.





All these properties mean more families that need schools which are full to the brim in the area,doctors & dentists any plans made for these major needs.
I feel the plans need further thought what about the infrastructure to support this development and area shops community centre doctors school? It’ll be another car ghetto with little means for people to meet and form a community isn’t combatting loneliness a national strategy?
New schools might be a better option than restaurants. It’s hard to see where the spare capacity is for the residents’ children given that Willow Farm is already full, as are both secondary schools, Carlton Academy and Carlton Le Willows. It seems the ‘planners’ idea is to wait until the problem occurs and then fix it. Maybe the real issue is that millions from the developer’s community contribution have already been allocated to fund the Gedling Access Road and not the essential local infrastructure.